Verso 126
Kodu südameks on avar köök-elutuba, kus pere saab koos aega veeta ja külalisi mugavalt vastu võtta. Suured aknad ja terrassid toovad ruumidesse rohkelt päevavalgust, luues avara ja õhulise atmosfääri.
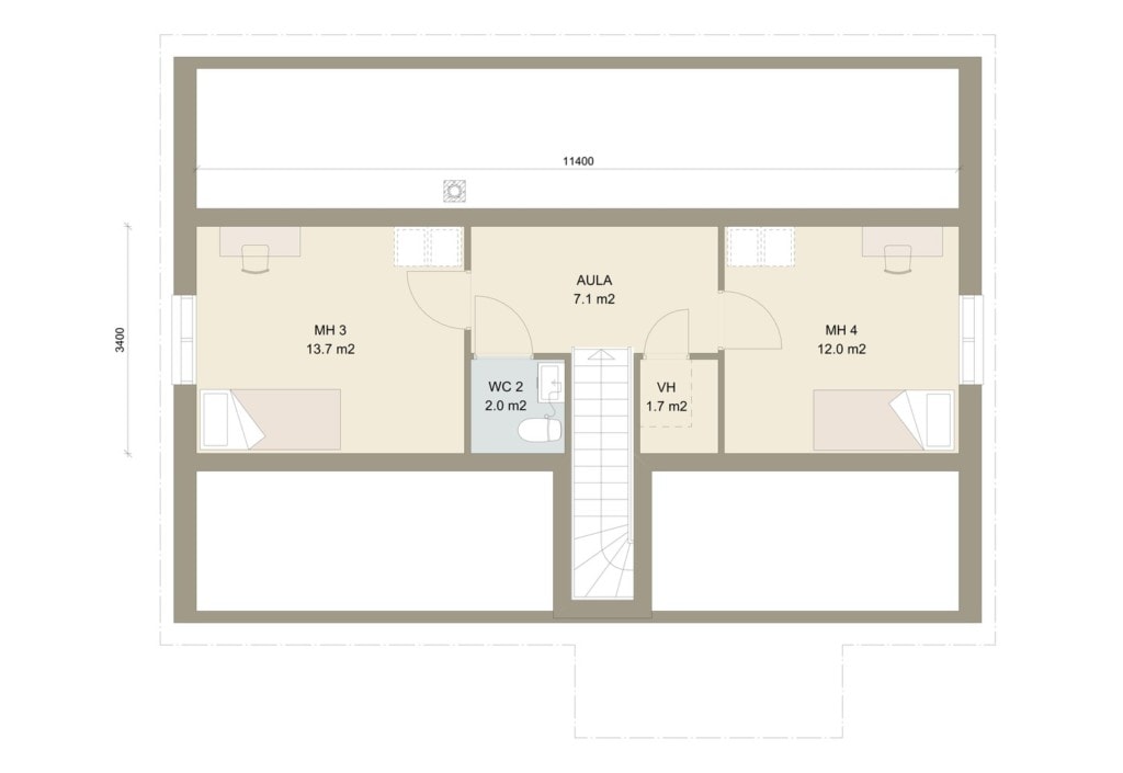
Verso 126 pakub nelja magamistuba, kabineti/lisatuba, majandusruumi, vannituba, wc ja praktilisi panipaiku, võimaldades igal pereliikmel nautida privaatsust ja mugavust. Nutikad planeerimislahendused tagavad, et iga ruutmeeter on maksimaalselt kasutatud, säilitades samal ajal avaruse ja läbimõeldud funktsionaalsuse.
Minimalistlik põhjamaine disain sobib nii linnakeskkonda kui looduskeskkonda, pakkudes pikaajalist mugavust ja turvalisust. Kastelli tuntud kvaliteet ja energiatõhus lahendus aitavad hoida ülalpidamiskulud madalad ja kodu hubasena aastaringselt.

Kohandamine ja võimalused
Kõiki Kastelli majamudeleid on kodu ehitajal võimalik ise ümber kujundada. Võimalik on majade pikemaks või lühemaks muutmine, aknatüüpide muutmine ja muud alternatiivid. Majadele on võimalik ehitada erinevas stiilis terrasse ja varjualuseid.
Vaata videost:
Verso 126 tehnilised andmed
Miks valida Verso 126?
Valgus ja ruum
Avatud köök-elutuba ja suured aknad terrassile
Hea planeering
4 magamistuba, kabinet/lisatuba, vannituba, wc ja panipaigad
Madalad ülalpidamiskulud
Energiasäästlik ja madalate ülalpidamiskuludega
Kastelli kvaliteet
Tõestatud konstruktsioonid, energiatõhusus ja materjalid, mis tagavad vastupidava ja kindla kodu aastakümneteks.
Kastelli majade ehituses kasutatakse kaasaegseid energiatõhusaid tehnoloogiaid, mis tagavad madalad küttekulud ja soojust säilitava kodu. Konstruktsioonid on täpselt tehases valminud, mis vähendab ehitusaega ja tagab kõrge kvaliteedi. Kõik majad on loodud pikaks elueaks, kasutades ainult vastupidavaid ja kõrge kvaliteediga materjale. Lisaks panustame tarkadesse lahendustesse, mis muudavad kodu mugavaks ja turvaliseks igapäevaelus.
Tehnilised andmed
| Kastelli | |
|---|---|
| Kvaliteet | Kõik majapaketi materjalid vastavad kõrgetele ehitusstandarditele, tagades pikaealise ja kindla kodu. |
| Soojustus ja energiatõhusus | Välisseinad on ISOVER Standardil, mis hoiab küttekulud madalad ja tagab mõnusa sisekliima aastaringselt. |
| Ruumid ja kõrgused | Vastavalt projektile on ruumide kõrgus ja suurus täpselt projekteeritud kliendi vajadusi silmas pidades. |
| Kujundus ja viimistlus | Välisviimistlus ning siselahendus vastavalt kliendi soovile, võimaldades kodu täielikult oma maitse järgi kujundada. |
| Joonised ja planeerimine | Digitaalsed eskiis- ja ehitusjoonised (PDF ja DWG) on aluseks ehitusloa menetlemisel, lihtsustavad planeerimist ja ehitust ning võimaldavad näha, kuidas maja reaalses elus välja näeb. |
| Tehasetäpsus ja tootmiskvaliteet | Kastelli majad toodetakse kaasaegses tehases kontrollitud tingimustes. See tagab millimeetri-täpsusega koostamise, kiire ehituse ja kindla kvaliteedi igas etapis. |
Lisaküsimuste korral võta meiega julgelt ühendust ja vastame esimesel võimalusel


