Ready 137
Ready 137 on maja, mis pakub kohe valmis lahendust, kuid ei jäta kvaliteedis kompromisse. Avatud köök-elutuba loob pere kogunemiskoha, kus on ruumi nii ühiseks ajaks kui külaliste võõrustamiseks. Magamistoad ja praktilised ruumid võimaldavad igal pereliikmel leida oma rahu. Suured aknad ja terrassid ühendavad siseruumid välisruumidega, tuues koju rohkelt valgust ja õhulisust. Ready 137 on ideaalne valik neile, kes soovivad kvaliteetset ja energiatõhusat kodu ilma pikka ooteaega.

Kohandamine ja võimalused
Kõiki Kastelli majamudeleid on kodu ehitajal võimalik ise ümber kujundada. Võimalik on majade pikemaks või lühemaks muutmine, aknatüüpide muutmine ja muud alternatiivid. Majadele on võimalik ehitada erinevas stiilis terrasse ja varjualuseid.
Vaata videost:
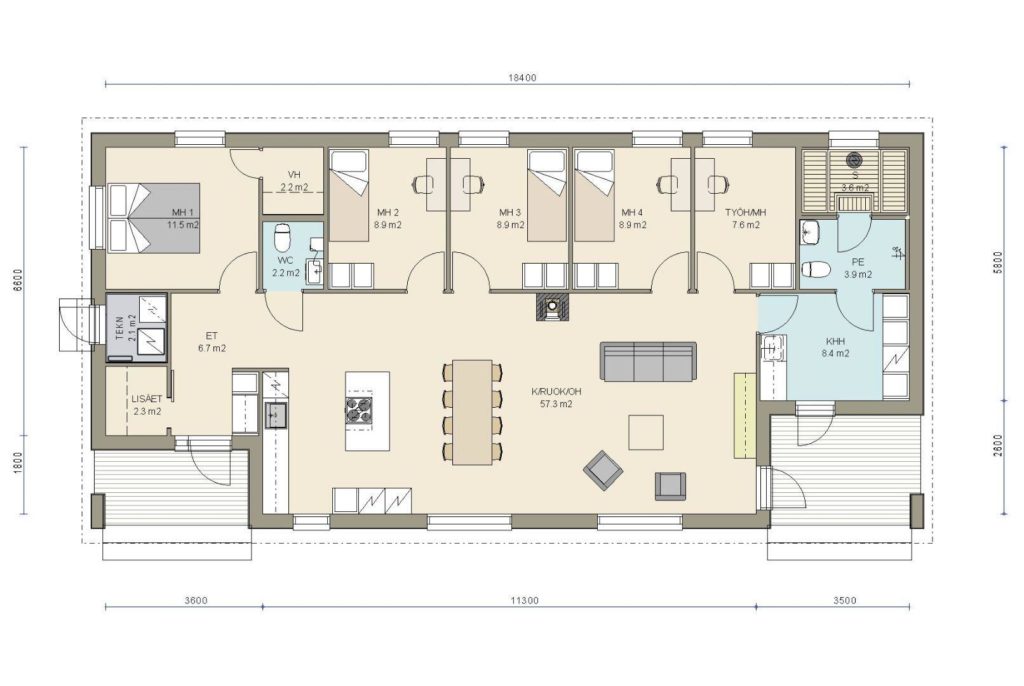
Ready 137 tehnilised andmed
Miks valida Ready 137?
Suured aknad ja terrassid
Loovad valgusküllase ja ühendatud elukeskkonna
Nutikas planeering
Saun, magamistuba, panipaigad
Avar elutuba ja avatud köök
Kodu süda, kus saab pere ja sõpradega aega veeta
Kastelli kvaliteet
Tõestatud konstruktsioonid, energiatõhusus ja materjalid, mis tagavad vastupidava ja kindla kodu aastakümneteks.
Kastelli majade ehituses kasutatakse kaasaegseid energiatõhusaid tehnoloogiaid, mis tagavad madalad küttekulud ja soojust säilitava kodu. Konstruktsioonid on täpselt tehases valminud, mis vähendab ehitusaega ja tagab kõrge kvaliteedi. Kõik majad on loodud pikaks elueaks, kasutades ainult vastupidavaid ja kõrge kvaliteediga materjale. Lisaks panustame tarkadesse lahendustesse, mis muudavad kodu mugavaks ja turvaliseks igapäevaelus.
Tehnilised andmed
| Kastelli | |
|---|---|
| Kvaliteet | Kõik majapaketi materjalid vastavad kõrgetele ehitusstandarditele, tagades pikaealise ja kindla kodu. |
| Soojustus ja energiatõhusus | Välisseinad on ISOVER Standardil, mis hoiab küttekulud madalad ja tagab mõnusa sisekliima aastaringselt. |
| Ruumid ja kõrgused | Vastavalt projektile on ruumide kõrgus ja suurus täpselt projekteeritud kliendi vajadusi silmas pidades. |
| Kujundus ja viimistlus | Välisviimistlus ning siselahendus vastavalt kliendi soovile, võimaldades kodu täielikult oma maitse järgi kujundada. |
| Joonised ja planeerimine | Digitaalsed eskiis- ja ehitusjoonised (PDF ja DWG) on aluseks ehitusloa menetlemisel, lihtsustavad planeerimist ja ehitust ning võimaldavad näha, kuidas maja reaalses elus välja näeb. |
| Tehasetäpsus ja tootmiskvaliteet | Kastelli majad toodetakse kaasaegses tehases kontrollitud tingimustes. See tagab millimeetri-täpsusega koostamise, kiire ehituse ja kindla kvaliteedi igas etapis. |
Lisaküsimuste korral võta meiega julgelt ühendust ja vastame esimesel võimalusel


