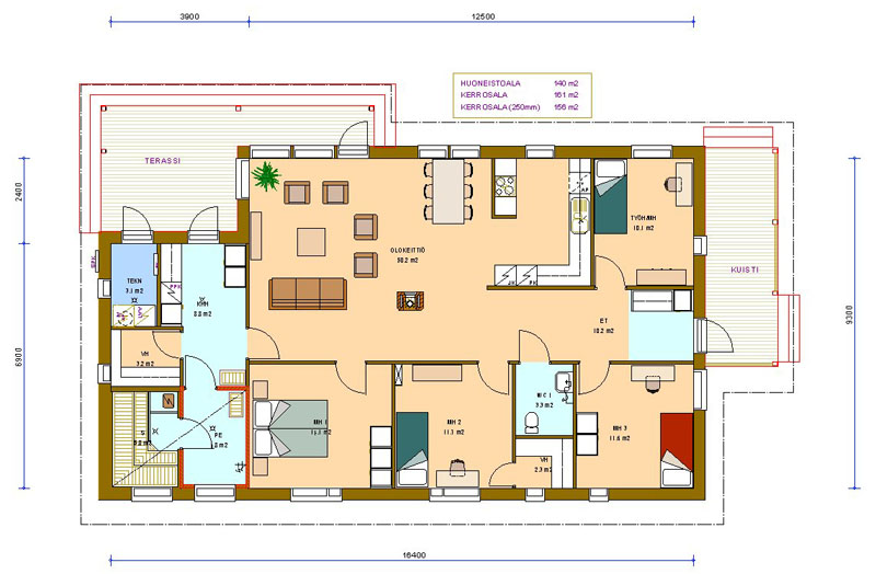
Plazia 140 – kaasaegne kodu praktilise planeeringuga
Plazia 140 pakub 140 m² läbimõeldud ruumide ja valgusküllase elamise kombinatsiooni. Elutuba on avatud köögiga ja ühendatud terrassiga, kolm magamistuba ja praktilised panipaigad muudavad igapäevaelu mugavaks.

Kohandamine ja võimalused
Kõiki Kastelli majamudeleid on kodu ehitajal võimalik ise ümber kujundada. Võimalik on majade pikemaks või lühemaks muutmine, aknatüüpide muutmine ja muud alternatiivid. Majadele on võimalik ehitada erinevas stiilis terrasse ja varjualuseid.
Vaata videost:
Plazia 140 tehnilised andmed
Plazia 140 Galerii
Miks valida Plazia 140?
Avar ja praktiline
Nutikad panipaigad ja majapidamisruum
Valgusküllane ja avar
Avatud köök-elutuba ja terrassiga ühendus
Energiasäästlik
Madalad küttekulud
Kompaktne
Sobitub erinevatesse asukohtadesse.
Kastelli majade ehituses kasutatakse kaasaegseid energiatõhusaid tehnoloogiaid, mis tagavad madalad küttekulud ja soojust säilitava kodu. Konstruktsioonid on täpselt tehases valminud, mis vähendab ehitusaega ja tagab kõrge kvaliteedi. Kõik majad on loodud pikaks elueaks, kasutades ainult vastupidavaid ja kõrge kvaliteediga materjale. Lisaks panustame tarkadesse lahendustesse, mis muudavad kodu mugavaks ja turvaliseks igapäevaelus.
Lisaküsimuste korral võta meiega julgelt ühendust ja vastame esimesel võimalusel


