Kuori 150
Kuori 150 on kodu, kus põhjamaine arhitektuur ja läbimõeldud ruumilahendus loovad tasakaalu funktsionaalsuse ja hubasuse vahel. 150 m² suurune planeering sobib ideaalselt suuremale perele või neile, kes soovivad kodus lisaruumi töötamiseks, hobideks või külaliste majutamiseks.
Kodu südameks on avatud köök-elutuba, mis loob valgusküllase ja õhulise keskkonna igapäevaeluks ning pere ja sõprade koosviibimisteks. Suured aknad ja terrassi ühendus toovad sisse loodusvalguse ning muudavad sise- ja väliruumi sujuvaks tervikuks.
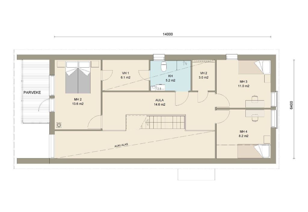
Kuori 150 pakub neli või viis magamistuba, kus iga pereliige leiab oma privaatsuse. Praktiline majapidamisruum, panipaigad ja läbimõeldud ruumijaotus tagavad, et kodu on korras ja funktsionaalne igas olukorras.
Tänu kaasaegsele ehitustehnoloogiale ja energiatõhusatele lahendustele on hooldusmugavus kõrge ja küttekulud madalad. Kuori 150 sobib nii linnalähedasesse elurajooni kui ka looduse keskele, pakkudes ruumi hingata, elada ja areneda.
Kastelli tuntud kvaliteet, ajatu disain ja pikaealisus teevad Kuori 150 mudelist kodu, mis kestab aastakümneid.



Kohandamine ja võimalused
Kõiki Kastelli majamudeleid on kodu ehitajal võimalik ise ümber kujundada. Võimalik on majade pikemaks või lühemaks muutmine, aknatüüpide muutmine ja muud alternatiivid. Majadele on võimalik ehitada erinevas stiilis terrasse ja varjualuseid.
Vaata videost:
Kuori 150 tehnilised andmed
Kuori Galerii
Miks valida Kuori 150?
Avar ja praktiline planeering
Kolm magamistuba ja avatud köök-elutuba pakuvad mugavust kogu perele.
Valgusküllane ja õdus
Suured aknad ja terrass ühendavad siseruumi loodusega.
Praktilised lahendused
Majapidamisruum ja panipaigad hoiavad kodu korras ja organiseerituna.
Disainmaja
Väljapaistev ja moderne disain
Kastelli majade ehituses kasutatakse kaasaegseid energiatõhusaid tehnoloogiaid, mis tagavad madalad küttekulud ja soojust säilitava kodu. Konstruktsioonid on täpselt tehases valminud, mis vähendab ehitusaega ja tagab kõrge kvaliteedi. Kõik majad on loodud pikaks elueaks, kasutades ainult vastupidavaid ja kõrge kvaliteediga materjale. Lisaks panustame tarkadesse lahendustesse, mis muudavad kodu mugavaks ja turvaliseks igapäevaelus.
Tehnilised andmed
| Kastelli | |
|---|---|
| Kvaliteet | Kõik majapaketi materjalid vastavad kõrgetele ehitusstandarditele, tagades pikaealise ja kindla kodu. |
| Soojustus ja energiatõhusus | Välisseinad on ISOVER Standardil, mis hoiab küttekulud madalad ja tagab mõnusa sisekliima aastaringselt. |
| Ruumid ja kõrgused | Vastavalt projektile on ruumide kõrgus ja suurus täpselt projekteeritud kliendi vajadusi silmas pidades. |
| Kujundus ja viimistlus | Välisviimistlus ning siselahendus vastavalt kliendi soovile, võimaldades kodu täielikult oma maitse järgi kujundada. |
| Joonised ja planeerimine | Digitaalsed eskiis- ja ehitusjoonised (PDF ja DWG) on aluseks ehitusloa menetlemisel, lihtsustavad planeerimist ja ehitust ning võimaldavad näha, kuidas maja reaalses elus välja näeb. |
| Tehasetäpsus ja tootmiskvaliteet | Kastelli majad toodetakse kaasaegses tehases kontrollitud tingimustes. See tagab millimeetri-täpsusega koostamise, kiire ehituse ja kindla kvaliteedi igas etapis. |
Lisaküsimuste korral võta meiega julgelt ühendust ja vastame esimesel võimalusel


