Kuori 125
Kuori 125 on kodu, kus funktsionaalsus ja ilu kohtuvad igas detailis. Selle 125 m² suuruse maja arhitektuur on selge ja ajatu – avarate ruumide ja loomuliku valgusega kodu, mis on loodud tänapäevase pere igapäevaelu mugavust silmas pidades.
Elutoa ja köögi ühendus loob avatud, õhulise südameruumi, mis on mõeldud koosolemiseks ja elamiseks. Suured aknad raamivad vaateid ning toovad tuppa valgust, ühendades sisemaailma terrassi ja õuealaga.
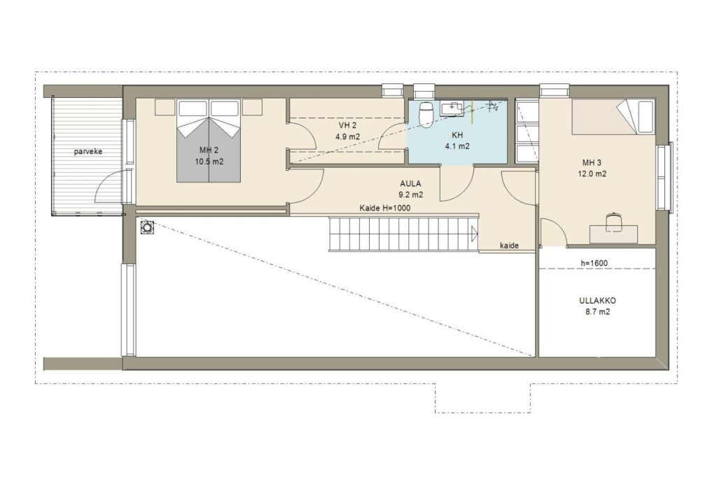
Kuori 125 pakub kolm magamistuba, privaatse vanematele mõeldud tsooni ning praktilise majapidamisruumi ja panipaigad, mis muudavad elu lihtsamaks ja kodu alati korrastatuks.
Maja energiatõhusus ja nutikad ehituslahendused tagavad madalad hoolduskulud ning meeldiva sisekliima aastaringselt. Kuori 125 on kodu, mis kasvab koos perega ja sobib nii linnalähedasse elurajooni kui looduslähedasse keskkonda.
Kastelli kvaliteet ja põhjamaine disain annavad sellele kodule iseloomu ja kindluse – see on maja, mille väärtus püsib ajas.

Kohandamine ja võimalused
Kõiki Kastelli majamudeleid on kodu ehitajal võimalik ise ümber kujundada. Võimalik on majade pikemaks või lühemaks muutmine, aknatüüpide muutmine ja muud alternatiivid. Majadele on võimalik ehitada erinevas stiilis terrasse ja varjualuseid.
Vaata videost:
Kuori 125 tehnilised andmed
Kuori Galerii
Miks valida Kuori 125?
Tasakaalus arhitektuur
Ajatu vorm, kus funktsioon ja disain täiendavad teineteist.
Avatud köök-elutuba
Köök ja elutuba ühendatud üheks avaraks koosolemise ruumiks.
Privaatne magamistsoon
Kolm magamistuba, sh vanematele eraldi ala.
Disainmaja
Väljapaistev ja moderne disain.
Kastelli majade ehituses kasutatakse kaasaegseid energiatõhusaid tehnoloogiaid, mis tagavad madalad küttekulud ja soojust säilitava kodu. Konstruktsioonid on täpselt tehases valminud, mis vähendab ehitusaega ja tagab kõrge kvaliteedi. Kõik majad on loodud pikaks elueaks, kasutades ainult vastupidavaid ja kõrge kvaliteediga materjale. Lisaks panustame tarkadesse lahendustesse, mis muudavad kodu mugavaks ja turvaliseks igapäevaelus.
Tehnilised andmed
| Kastelli | |
|---|---|
| Kvaliteet | Kõik majapaketi materjalid vastavad kõrgetele ehitusstandarditele, tagades pikaealise ja kindla kodu. |
| Soojustus ja energiatõhusus | Välisseinad on ISOVER Standardil, mis hoiab küttekulud madalad ja tagab mõnusa sisekliima aastaringselt. |
| Ruumid ja kõrgused | Vastavalt projektile on ruumide kõrgus ja suurus täpselt projekteeritud kliendi vajadusi silmas pidades. |
| Kujundus ja viimistlus | Välisviimistlus ning siselahendus vastavalt kliendi soovile, võimaldades kodu täielikult oma maitse järgi kujundada. |
| Joonised ja planeerimine | Digitaalsed eskiis- ja ehitusjoonised (PDF ja DWG) on aluseks ehitusloa menetlemisel, lihtsustavad planeerimist ja ehitust ning võimaldavad näha, kuidas maja reaalses elus välja näeb. |
| Tehasetäpsus ja tootmiskvaliteet | Kastelli majad toodetakse kaasaegses tehases kontrollitud tingimustes. See tagab millimeetri-täpsusega koostamise, kiire ehituse ja kindla kvaliteedi igas etapis. |
Lisaküsimuste korral võta meiega julgelt ühendust ja vastame esimesel võimalusel


