Kuori 116
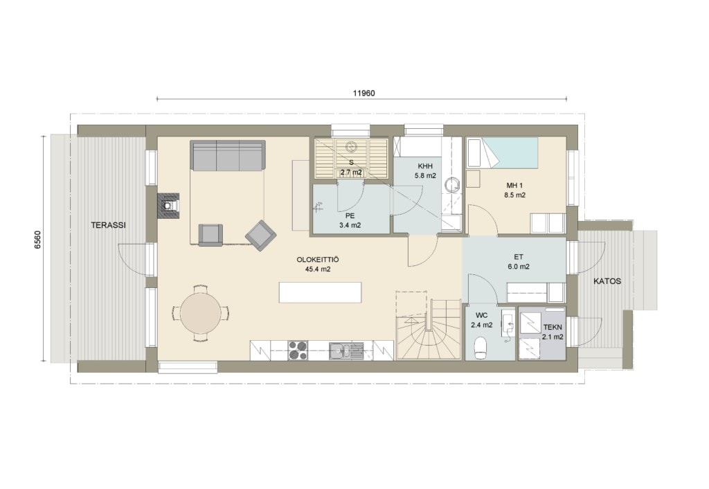
Kuori 116 on kodu, kus rahulik põhjamaine arhitektuur ja praktiline planeering loovad harmoonia funktsionaalsuse ja esteetika vahel. See 116 m² suurune ühekorruseline maja sobib ideaalselt perele, kes hindab avarust, valgust ja kodusoojust.
Kodu südameks on avatud köök-elutuba, mis ühendab kõik pereliikmed – olgu see ühine õhtusöök, nädalavahetuse film või külaliste võõrustamine. Suured aknad ja sujuv ühendus terrassiga toovad sisse rohkelt päevavalgust ja avavad vaated ümbruskonnale.
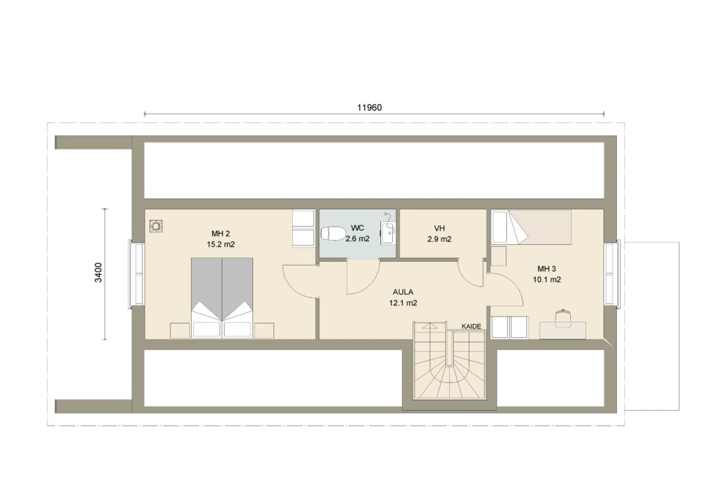
Kuori 116 ruumiplaneering on lihtne, kuid nutikas: kolm magamistuba, majapidamisruum ja funktsionaalsed panipaigad tagavad mugava igapäevaelu. Praktilisus ja hubasus käivad siin käsikäes.
Tänu kaasaegsele ehitustehnoloogiale ja energiatõhusatele lahendustele on kodu ökonoomne pidada ning sisekliima püsib meeldiv aastaringselt.
Kuori 116 sobib nii neile, kes otsivad esimest päris oma kodu, kui ka neile, kes soovivad väiksema hooldusvajadusega kaasaegset eluaset.
Nagu kõigi Kastelli majade puhul, on ka Kuori 116 puhul iga detail paigas – kvaliteet, disain ja elamismugavus, mis kestab aastakümneid.
Kuori 116 maja on võimalik tellida ka ilma teist korrust välja ehitamata. See mudel on Kuori 76.

Kohandamine ja võimalused
Kõiki Kastelli majamudeleid on kodu ehitajal võimalik ise ümber kujundada. Võimalik on majade pikemaks või lühemaks muutmine, aknatüüpide muutmine ja muud alternatiivid. Majadele on võimalik ehitada erinevas stiilis terrasse ja varjualuseid.
Vaata videost:
Kuori 116 tehnilised andmed
Kuori galerii
Miks valida Kuori 116?
Avar ja praktiline planeering
Kolm magamistuba ja avatud köök-elutuba pakuvad mugavust kogu perele.
Valgusküllane ja õdus
Suured aknad ja terrass ühendavad siseruumi loodusega.
Praktilised lahendused
Majapidamisruum ja panipaigad hoiavad kodu korras ja organiseerituna.
Disainmaja
Väljapaistev ja moderne disain
Kastelli majade ehituses kasutatakse kaasaegseid energiatõhusaid tehnoloogiaid, mis tagavad madalad küttekulud ja soojust säilitava kodu. Konstruktsioonid on täpselt tehases valminud, mis vähendab ehitusaega ja tagab kõrge kvaliteedi. Kõik majad on loodud pikaks elueaks, kasutades ainult vastupidavaid ja kõrge kvaliteediga materjale. Lisaks panustame tarkadesse lahendustesse, mis muudavad kodu mugavaks ja turvaliseks igapäevaelus.
Tehnilised andmed
| Kastelli | |
|---|---|
| Kvaliteet | Kõik majapaketi materjalid vastavad kõrgetele ehitusstandarditele, tagades pikaealise ja kindla kodu. |
| Soojustus ja energiatõhusus | Välisseinad on ISOVER Standardil, mis hoiab küttekulud madalad ja tagab mõnusa sisekliima aastaringselt. |
| Ruumid ja kõrgused | Vastavalt projektile on ruumide kõrgus ja suurus täpselt projekteeritud kliendi vajadusi silmas pidades. |
| Kujundus ja viimistlus | Välisviimistlus ning siselahendus vastavalt kliendi soovile, võimaldades kodu täielikult oma maitse järgi kujundada. |
| Joonised ja planeerimine | Digitaalsed eskiis- ja ehitusjoonised (PDF ja DWG) on aluseks ehitusloa menetlemisel, lihtsustavad planeerimist ja ehitust ning võimaldavad näha, kuidas maja reaalses elus välja näeb. |
| Tehasetäpsus ja tootmiskvaliteet | Kastelli majad toodetakse kaasaegses tehases kontrollitud tingimustes. See tagab millimeetri-täpsusega koostamise, kiire ehituse ja kindla kvaliteedi igas etapis. |
Lisaküsimuste korral võta meiega julgelt ühendust ja vastame esimesel võimalusel


