Kuori 114
Kuori kollektsiooni disainkodud on skandinaavialikult kaunid ja praktilised, samas kaasaegsed ja ajatud.
Kuori kollektsiooni tunnuseks on stiilselt graafiline katusekonstruktsioon, mis rõhutab nii maja välisilmet ning samas võimaldab siseruumides rakendada kõrgemat katuslage.
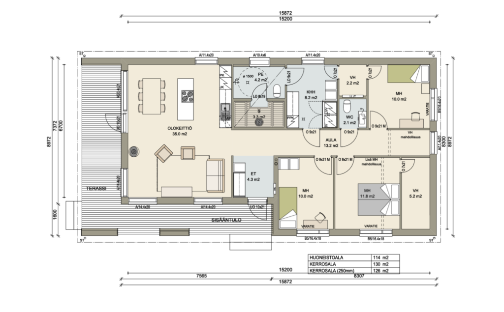
Kuori 114 ühendab põhjamaise arhitektuuri selged jooned ja nutika ruumijaotuse. 114 m² suuruses majas on avatud köök-elutuba, kolm magamistuba, majapidamisruum ja praktilised panipaigad. Suured aknad toovad tuppa palju loomulikku valgust ning loovad ühenduse terrassi ja õuealaga, muutes kodu avaraks ja hubaseks.
Tänu läbimõeldud planeeringule ja praktilistele lahendustele sobib Kuori 114 ideaalselt igapäevaseks eluks või suvekoduks. Nagu kõigi Kastelli majade puhul, iseloomustab ka seda mudelit kvaliteet, energiatõhusus ja ajatu disain, mis tagavad pikaajalise mugavuse ja väärtuse.

Kohandamine ja võimalused
Kõiki Kastelli majamudeleid on kodu ehitajal võimalik ise ümber kujundada. Võimalik on majade pikemaks või lühemaks muutmine, aknatüüpide muutmine ja muud alternatiivid. Majadele on võimalik ehitada erinevas stiilis terrasse ja varjualuseid.
Vaata videost:
Kuori 114 tehnilised andmed
Kuori Galerii
Miks valida Kuori 114?
Avar ja praktiline planeering
Kolm magamistuba ja avatud köök-elutuba pakuvad mugavust kogu perele.
Valgusküllane ja õdus
Suured aknad ja terrass ühendavad siseruumi loodusega.
Praktilised lahendused
Majapidamisruum ja panipaigad hoiavad kodu korras ja organiseerituna.
Disainmaja
Väljapaistev ja moderne disain
Kastelli majade ehituses kasutatakse kaasaegseid energiatõhusaid tehnoloogiaid, mis tagavad madalad küttekulud ja soojust säilitava kodu. Konstruktsioonid on täpselt tehases valminud, mis vähendab ehitusaega ja tagab kõrge kvaliteedi. Kõik majad on loodud pikaks elueaks, kasutades ainult vastupidavaid ja kõrge kvaliteediga materjale. Lisaks panustame tarkadesse lahendustesse, mis muudavad kodu mugavaks ja turvaliseks igapäevaelus.
Tehnilised andmed
| Kastelli | |
|---|---|
| Kvaliteet | Kõik majapaketi materjalid vastavad kõrgetele ehitusstandarditele, tagades pikaealise ja kindla kodu. |
| Soojustus ja energiatõhusus | Välisseinad on ISOVER Standardil, mis hoiab küttekulud madalad ja tagab mõnusa sisekliima aastaringselt. |
| Ruumid ja kõrgused | Vastavalt projektile on ruumide kõrgus ja suurus täpselt projekteeritud kliendi vajadusi silmas pidades. |
| Kujundus ja viimistlus | Välisviimistlus ning siselahendus vastavalt kliendi soovile, võimaldades kodu täielikult oma maitse järgi kujundada. |
| Joonised ja planeerimine | Digitaalsed eskiis- ja ehitusjoonised (PDF ja DWG) on aluseks ehitusloa menetlemisel, lihtsustavad planeerimist ja ehitust ning võimaldavad näha, kuidas maja reaalses elus välja näeb. |
| Tehasetäpsus ja tootmiskvaliteet | Kastelli majad toodetakse kaasaegses tehases kontrollitud tingimustes. See tagab millimeetri-täpsusega koostamise, kiire ehituse ja kindla kvaliteedi igas etapis. |
Lisaküsimuste korral võta meiega julgelt ühendust ja vastame esimesel võimalusel


