Kultaranta 154
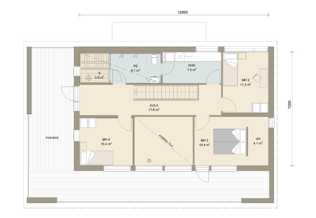
Kultaranta 154 ühendab põhjamaise arhitektuuri ajatu stiili ja läbimõeldud ruumijaotuse. Stiilse arhitektuuri ja suurepärase ruumilahendusega nelja magamistoaga kahekordne maja. 154 m² suuruses kodus on avatud köök-elutuba, kolm kuni neli magamistuba, majapidamisruum ja nutikad panipaigad. Suured aknad tagavad loomuliku valguse ja loovad ühenduse terrassi ning õuealaga, muutes kodu avaraks ja hubaseks.
Praktilised lahendused ja läbimõeldud planeering muudavad igapäevaelu lihtsaks ning loovad mugava kodu igale perele. Nagu kõigi Kastelli majade puhul, iseloomustab ka Kultaranta 154 mudelit kvaliteet, energiatõhusus ja pikaajaline väärtus, pakkudes turvalist ja mugavat elukeskkonda.
Valgusküllasele majale annab lisaväärtust avar katusealune rõdu, mis toimib lisaaiana.

Kohandamine ja võimalused
Kõiki Kastelli majamudeleid on kodu ehitajal võimalik ise ümber kujundada. Võimalik on majade pikemaks või lühemaks muutmine, aknatüüpide muutmine ja muud alternatiivid. Majadele on võimalik ehitada erinevas stiilis terrasse ja varjualuseid.
Vaata videost:
Kultaranta 154 tehnilised andmed
Kultaranta Galerii
Miks valida Kultaranta 154?
Avar planeering
3-4 magamistuba ja avatud köök-elutuba pakuvad mugavust kogu perele.
Valgusküllane elu
suured aknad ja terrass ühendavad siseruumi loodusega.
Praktilised lahendused
Majapidamisruum ja panipaigad hoiavad kodu korras ja organiseerituna.
Energiasäästlik ja vastupidav
Kastelli ehitusstandardid tagavad madalad küttekulud ja pika eluea.
Kastelli majade ehituses kasutatakse kaasaegseid energiatõhusaid tehnoloogiaid, mis tagavad madalad küttekulud ja soojust säilitava kodu. Konstruktsioonid on täpselt tehases valminud, mis vähendab ehitusaega ja tagab kõrge kvaliteedi. Kõik majad on loodud pikaks elueaks, kasutades ainult vastupidavaid ja kõrge kvaliteediga materjale. Lisaks panustame tarkadesse lahendustesse, mis muudavad kodu mugavaks ja turvaliseks igapäevaelus.
Tehnilised andmed
| Kastelli | |
|---|---|
| Kvaliteet | Kõik majapaketi materjalid vastavad kõrgetele ehitusstandarditele, tagades pikaealise ja kindla kodu. |
| Soojustus ja energiatõhusus | Välisseinad on ISOVER Standardil, mis hoiab küttekulud madalad ja tagab mõnusa sisekliima aastaringselt. |
| Ruumid ja kõrgused | Vastavalt projektile on ruumide kõrgus ja suurus täpselt projekteeritud kliendi vajadusi silmas pidades. |
| Kujundus ja viimistlus | Välisviimistlus ning siselahendus vastavalt kliendi soovile, võimaldades kodu täielikult oma maitse järgi kujundada. |
| Joonised ja planeerimine | Digitaalsed eskiis- ja ehitusjoonised (PDF ja DWG) on aluseks ehitusloa menetlemisel, lihtsustavad planeerimist ja ehitust ning võimaldavad näha, kuidas maja reaalses elus välja näeb. |
| Tehasetäpsus ja tootmiskvaliteet | Kastelli majad toodetakse kaasaegses tehases kontrollitud tingimustes. See tagab millimeetri-täpsusega koostamise, kiire ehituse ja kindla kvaliteedi igas etapis. |
Lisaküsimuste korral võta meiega julgelt ühendust ja vastame esimesel võimalusel


