Kultaranta 131
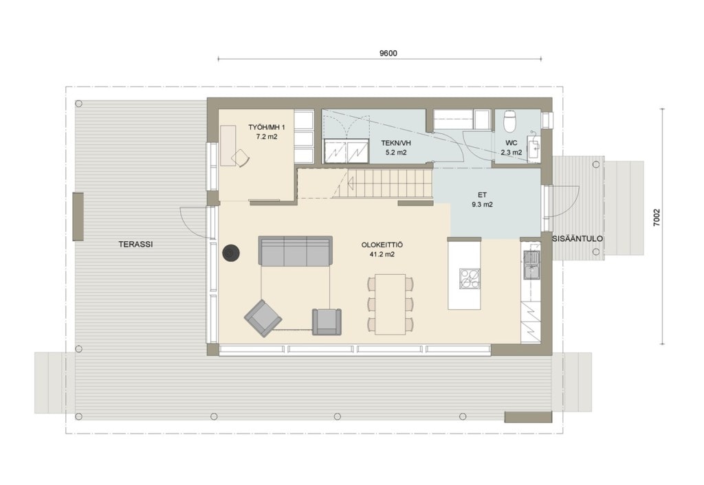
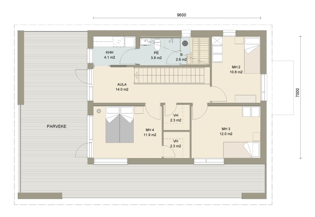
Kultaranta 131 ühendab põhjamaise arhitektuuri ajatu stiili ja läbimõeldud ruumilahenduse. 131 m² suuruses kodus on avatud köök-elutuba, kabinet, kolm magamistuba, majapidamisruum ja nutikad panipaigad. Suured aknad tagavad loomuliku valguse ja loovad ühenduse terrassi ning õuealaga, muutes kodu avaraks ja õdusaks.
Kodaruumide läbimõeldud planeering ja praktilised lahendused muudavad igapäevaelu lihtsaks ning loovad hubase ja mugava kodu. Nagu kõigi Kastelli majade puhul, iseloomustab ka Kultaranta 131 mudelit kvaliteet, energiatõhusus ja pikaajaline väärtus, pakkudes turvalist ja mugavat elukeskkonda.
Esimese korruse magamistoa saab hõlpsalt muuta ka kabinetiks või hobitoaks. Ülakorruse suur rõdu on maja teiseks aiaks, mis loob privaatsust ka väiksemal krundil.

Kohandamine ja võimalused
Kõiki Kastelli majamudeleid on kodu ehitajal võimalik ise ümber kujundada. Võimalik on majade pikemaks või lühemaks muutmine, aknatüüpide muutmine ja muud alternatiivid. Majadele on võimalik ehitada erinevas stiilis terrasse ja varjualuseid.
Vaata videost:
Kultaranta 131 tehnilised andmed
Kultaranta Galerii
Miks valida Kultaranta 131?
Tasakaalus planeering
3-4 magamistuba ja avatud köök-elutuba pakuvad mugavust kogu perele.
Valgusküllane elu
suured aknad ja terrass ühendavad siseruumi loodusega.
Praktilised lahendused
Majapidamisruum ja panipaigad hoiavad kodu korras ja organiseerituna.
Energiasäästlik ja vastupidav
Kastelli ehitusstandardid tagavad madalad küttekulud ja pika eluea.
Kastelli majade ehituses kasutatakse kaasaegseid energiatõhusaid tehnoloogiaid, mis tagavad madalad küttekulud ja soojust säilitava kodu. Konstruktsioonid on täpselt tehases valminud, mis vähendab ehitusaega ja tagab kõrge kvaliteedi. Kõik majad on loodud pikaks elueaks, kasutades ainult vastupidavaid ja kõrge kvaliteediga materjale. Lisaks panustame tarkadesse lahendustesse, mis muudavad kodu mugavaks ja turvaliseks igapäevaelus.
Tehnilised andmed
| Kastelli | |
|---|---|
| Kvaliteet | Kõik majapaketi materjalid vastavad kõrgetele ehitusstandarditele, tagades pikaealise ja kindla kodu. |
| Soojustus ja energiatõhusus | Välisseinad on ISOVER Standardil, mis hoiab küttekulud madalad ja tagab mõnusa sisekliima aastaringselt. |
| Ruumid ja kõrgused | Vastavalt projektile on ruumide kõrgus ja suurus täpselt projekteeritud kliendi vajadusi silmas pidades. |
| Kujundus ja viimistlus | Välisviimistlus ning siselahendus vastavalt kliendi soovile, võimaldades kodu täielikult oma maitse järgi kujundada. |
| Joonised ja planeerimine | Digitaalsed eskiis- ja ehitusjoonised (PDF ja DWG) on aluseks ehitusloa menetlemisel, lihtsustavad planeerimist ja ehitust ning võimaldavad näha, kuidas maja reaalses elus välja näeb. |
| Tehasetäpsus ja tootmiskvaliteet | Kastelli majad toodetakse kaasaegses tehases kontrollitud tingimustes. See tagab millimeetri-täpsusega koostamise, kiire ehituse ja kindla kvaliteedi igas etapis. |
Lisaküsimuste korral võta meiega julgelt ühendust ja vastame esimesel võimalusel


