Kultaranta 123
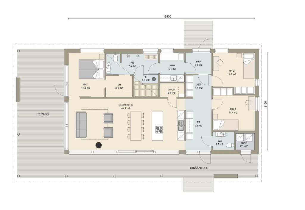
Kultaranta 123 ühendab kaasaegse arhitektuuri ja läbimõeldud ruumilahenduse, pakkudes 123 m² suuruses majas kõike, mida üks kodu vajab. Avatud köök-elutuba loob pere keskse kogunemiskoha, kus on ruumi nii ühisteks hetkedeks kui külaliste võõrustamiseks. Kolm magamistuba tagavad privaatsuse ja mugavuse, samas kui praktiline majapidamisruum ja panipaigad hoiavad kodu korras ja funktsionaalsena.
Suured aknad toovad tuppa rohkelt loomulikku valgust ning ühendavad eluruumi sujuvalt terrassi ja õuealaga. Kultaranta 123 sobib suurepäraselt nii linnalähedasse elurajooni kui rahulikku looduskaunisse keskkonda. Nagu kõigi Kastelli majade puhul, on ka selle mudeli tugevuseks energiasäästlikkus, kvaliteet ja ajatu disain.

Kohandamine ja võimalused
Kõiki Kastelli majamudeleid on kodu ehitajal võimalik ise ümber kujundada. Võimalik on majade pikemaks või lühemaks muutmine, aknatüüpide muutmine ja muud alternatiivid. Majadele on võimalik ehitada erinevas stiilis terrasse ja varjualuseid.
Vaata videost:
Kultaranta 123 tehnilised andmed
Kultaranta Galerii
Miks valida Kultaranta 123?
Tasakaalus planeering
Kolm magamistuba ja avatud elutuba pakuvad mugavust ja privaatsust.
Valgusküllane atmosfäär
Suured aknad ja terrass ühendavad siseruumi loodusega.
Praktilised lahendused
Majapidamisruum ja panipaigad hoiavad elu organiseerituna.
Energiasäästlik ja vastupidav
Kastelli kvaliteet tagab madalad ülalpidamiskulud ja pika eluea.
Kastelli majade ehituses kasutatakse kaasaegseid energiatõhusaid tehnoloogiaid, mis tagavad madalad küttekulud ja soojust säilitava kodu. Konstruktsioonid on täpselt tehases valminud, mis vähendab ehitusaega ja tagab kõrge kvaliteedi. Kõik majad on loodud pikaks elueaks, kasutades ainult vastupidavaid ja kõrge kvaliteediga materjale. Lisaks panustame tarkadesse lahendustesse, mis muudavad kodu mugavaks ja turvaliseks igapäevaelus.
Tehnilised andmed
| Kastelli | |
|---|---|
| Kvaliteet | Kõik majapaketi materjalid vastavad kõrgetele ehitusstandarditele, tagades pikaealise ja kindla kodu. |
| Soojustus ja energiatõhusus | Välisseinad on ISOVER Standardil, mis hoiab küttekulud madalad ja tagab mõnusa sisekliima aastaringselt. |
| Ruumid ja kõrgused | Vastavalt projektile on ruumide kõrgus ja suurus täpselt projekteeritud kliendi vajadusi silmas pidades. |
| Kujundus ja viimistlus | Välisviimistlus ning siselahendus vastavalt kliendi soovile, võimaldades kodu täielikult oma maitse järgi kujundada. |
| Joonised ja planeerimine | Digitaalsed eskiis- ja ehitusjoonised (PDF ja DWG) on aluseks ehitusloa menetlemisel, lihtsustavad planeerimist ja ehitust ning võimaldavad näha, kuidas maja reaalses elus välja näeb. |
| Tehasetäpsus ja tootmiskvaliteet | Kastelli majad toodetakse kaasaegses tehases kontrollitud tingimustes. See tagab millimeetri-täpsusega koostamise, kiire ehituse ja kindla kvaliteedi igas etapis. |
Võtmed kätte alates 304 500 EUR
Lisaküsimuste korral võta meiega julgelt ühendust ja vastame esimesel võimalusel


