Kartano 89
Kartano 89 on klassikalise põhjamaise arhitektuuriga kodu, mis ühendab selged jooned, funktsionaalse ruumijaotuse ja valgusküllased eluruumid. 89 m² suuruse alumise korrusega kodu on ideaalne valik väiksemale või keskmise suurusega perele, pakkudes mugavust, harmooniat ja praktilisust igapäevaelus. Avatud köök-elutuba loob hubase kogunemiskoha, samas kui magamistoad ja praktilised panipaigad tagavad privaatsuse ja korrashoiu.
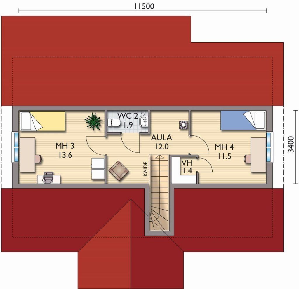
Ehitades välja ka teise korruse on võimalik lisada veel 2 magamistuba ja maja suurus on kokku teise korrusega 130 m².
Ilmekas katusealune ja soovi korral ülakorruse rõdu peasissepääsu kohal annavad Kartano tüüpi kodule nägusa välimuse. Praktiliselt toimivad ruumide lahendused on paigutatud ümber avara köök-elutoa. Ülakorruse võib välja ehitada kohe või hiljem vastavalt pere ruumivajadusele. Kastelli paindliku ehitamise süsteemi järgi on võimalik klassikalise maja rohkeid stiilseid detaile ehitada kvaliteetselt ja mõistliku hinnaga.

Kohandamine ja võimalused
Kõiki Kastelli majamudeleid on kodu ehitajal võimalik ise ümber kujundada. Võimalik on majade pikemaks või lühemaks muutmine, aknatüüpide muutmine ja muud alternatiivid. Majadele on võimalik ehitada erinevas stiilis terrasse ja varjualuseid.
Vaata videost:
Kartano 89 tehnilised andmed
Miks valida Kartano 89?
Terrass ja suurte akendega
Nautida päevavalguse ja looduse ilu igas hetkes
Nutikas planeering
Saun, magamistuba, panipaigad
Avar elutuba ja avatud köök
Hubane kogunemispaik perele ja sõpradele
Kastelli kvaliteet
Tõestatud konstruktsioonid, energiatõhusus ja materjalid, mis tagavad vastupidava ja kindla kodu aastakümneteks.
Kastelli majade ehituses kasutatakse kaasaegseid energiatõhusaid tehnoloogiaid, mis tagavad madalad küttekulud ja soojust säilitava kodu. Konstruktsioonid on täpselt tehases valminud, mis vähendab ehitusaega ja tagab kõrge kvaliteedi. Kõik majad on loodud pikaks elueaks, kasutades ainult vastupidavaid ja kõrge kvaliteediga materjale. Lisaks panustame tarkadesse lahendustesse, mis muudavad kodu mugavaks ja turvaliseks igapäevaelus.
Tehnilised andmed
| Kastelli | |
|---|---|
| Kvaliteet | Kõik majapaketi materjalid vastavad kõrgetele ehitusstandarditele, tagades pikaealise ja kindla kodu. |
| Soojustus ja energiatõhusus | Välisseinad on ISOVER Standardil, mis hoiab küttekulud madalad ja tagab mõnusa sisekliima aastaringselt. |
| Ruumid ja kõrgused | Vastavalt projektile on ruumide kõrgus ja suurus täpselt projekteeritud kliendi vajadusi silmas pidades. |
| Kujundus ja viimistlus | Välisviimistlus ning siselahendus vastavalt kliendi soovile, võimaldades kodu täielikult oma maitse järgi kujundada. |
| Joonised ja planeerimine | Digitaalsed eskiis- ja ehitusjoonised (PDF ja DWG) on aluseks ehitusloa menetlemisel, lihtsustavad planeerimist ja ehitust ning võimaldavad näha, kuidas maja reaalses elus välja näeb. |
| Tehasetäpsus ja tootmiskvaliteet | Kastelli majad toodetakse kaasaegses tehases kontrollitud tingimustes. See tagab millimeetri-täpsusega koostamise, kiire ehituse ja kindla kvaliteedi igas etapis. |
Lisaküsimuste korral võta meiega julgelt ühendust ja vastame esimesel võimalusel


