City 120
City 120 on kaasaegne ja valgusküllane kodu, mis ühendab funktsionaalsuse, mugavuse ja põhjamaise disaini. 120 m² elamispind pakub piisavalt ruumi igapäevaseks eluks ning sobib suurepäraselt perele, kes hindab läbimõeldud ruumijaotust, energiatõhusust ja ajatut arhitektuuri.
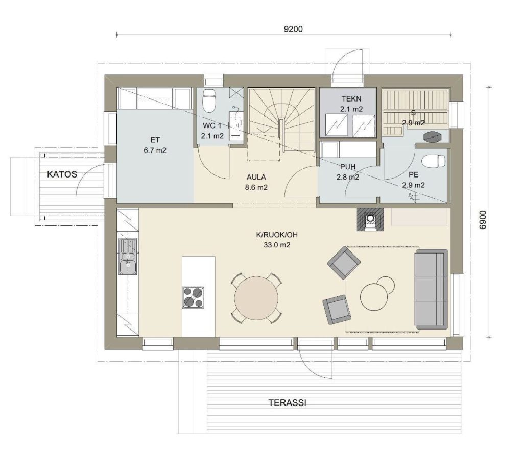
Kodu süda on avatud köök-elutuba, kus saab perega aega veeta või sõpru võõrustada. Suured aknad toovad ruumi loomuliku valguse ja ühendavad eluruumi sujuvalt terrassi ja õuega. City 120 pakub praktilist planeeringut: kolm magamistuba, kabinet, majandusruum ja panipaigad, mis tagavad korrastatud ja mugava kodukeskkonna.
City 120 on loodud pikaealiseks ja energiatõhusaks: kvaliteetsed materjalid ja soojustatud konstruktsioonid tagavad madalad küttekulud ning meeldiva sisekliima aastaringselt. Lisaks on kodu paindlik ja kohandatav – ruumide paigutust, terrassi suurust, aknaid ja lagede kõrgust saab muuta täpselt pere vajaduste järgi.
See mudel on ideaalne neile, kes otsivad hubast, praktilist ja kaasaegset kodu, kus iga päev pakub mugavust ja turvatunnet ning ruum kasvab koos pere vajadustega.
Kohandamine ja võimalused
Kõiki Kastelli majamudeleid on kodu ehitajal võimalik ise ümber kujundada. Võimalik on majade pikemaks või lühemaks muutmine, aknatüüpide muutmine ja muud alternatiivid. Majadele on võimalik ehitada erinevas stiilis terrasse ja varjualuseid.
Vaata videost:
City 120 tehnilised andmed
Miks valida City 120?
Funktsionaalne planeering
Iga ruutmeeter on targalt kasutatud, sobib nii perele kui paarile.
Energiasäästlik ja pikaealine
Kaasaegsed materjalid ja konstruktsioonid tagavad madalad kulud ja mõnusa sisekliima.
Paindlik ja kohandatav
Võimalus muuta ruumide paigutust ja detaile vastavalt oma vajadustele.
Kastelli kvaliteet
Tõestatud konstruktsioonid, energiatõhusus ja materjalid, mis tagavad vastupidava ja kindla kodu aastakümneteks.
Kastelli majade ehituses kasutatakse kaasaegseid energiatõhusaid tehnoloogiaid, mis tagavad madalad küttekulud ja soojust säilitava kodu. Konstruktsioonid on täpselt tehases valminud, mis vähendab ehitusaega ja tagab kõrge kvaliteedi. Kõik majad on loodud pikaks elueaks, kasutades ainult vastupidavaid ja kõrge kvaliteediga materjale. Lisaks panustame tarkadesse lahendustesse, mis muudavad kodu mugavaks ja turvaliseks igapäevaelus.
Tehnilised andmed
| Kastelli | |
|---|---|
| Kvaliteet | Kõik majapaketi materjalid vastavad kõrgetele ehitusstandarditele, tagades pikaealise ja kindla kodu. |
| Soojustus ja energiatõhusus | Välisseinad on ISOVER Standardil, mis hoiab küttekulud madalad ja tagab mõnusa sisekliima aastaringselt. |
| Ruumid ja kõrgused | Vastavalt projektile on ruumide kõrgus ja suurus täpselt projekteeritud kliendi vajadusi silmas pidades. |
| Kujundus ja viimistlus | Välisviimistlus ning siselahendus vastavalt kliendi soovile, võimaldades kodu täielikult oma maitse järgi kujundada. |
| Joonised ja planeerimine | Digitaalsed eskiis- ja ehitusjoonised (PDF ja DWG) on aluseks ehitusloa menetlemisel, lihtsustavad planeerimist ja ehitust ning võimaldavad näha, kuidas maja reaalses elus välja näeb. |
| Tehasetäpsus ja tootmiskvaliteet | Kastelli majad toodetakse kaasaegses tehases kontrollitud tingimustes. See tagab millimeetri-täpsusega koostamise, kiire ehituse ja kindla kvaliteedi igas etapis. |
Lisaküsimuste korral võta meiega julgelt ühendust ja vastame esimesel võimalusel


