City 119
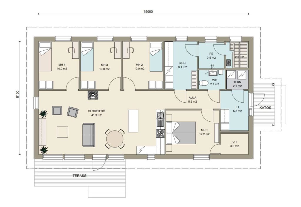
City 119 on valgusküllane, praktiline ja hubane kodu, mis pakub piisavalt ruumi ja mugavust igapäevaeluks. 119 m² suurune elamispind sobib suurepäraselt perele, kes hindab nutikat planeeringut, energiatõhusust ja kaasaegset põhjamaist arhitektuuri.
Kodu süda on avatud köök-elutuba, kus saab perega koos aega veeta ja külalisi võõrustada. Suured aknad lasevad tuppa rohkelt loomulikku valgust ning loovad sujuva ühenduse terrassi ja õuega. City 119 pakub läbimõeldud eluruume – kolm magamistuba, kabinet või mängutuba, majandusruum ja panipaigad, mis teevad igast ruutmeeterest praktilise ja funktsionaalse.
City 119 on loodud kestma: kvaliteetsed materjalid ja soojapidav konstruktsioon tagavad madalad küttekulud ning mõnusa sisekliima aastaringselt. Lisaks on kodu paindlik – ruumide paigutust, terrassi suurust, aknaid ja lagede kõrgust saab kohandada täpselt vastavalt pere vajadustele.
See mudel on ideaalne neile, kes otsivad ajatut, mugavat ja praktilist kodu, kus ruum kasvab koos perega ning iga päev pakub hubasust ja turvatunnet.

Kohandamine ja võimalused
Kõiki Kastelli majamudeleid on kodu ehitajal võimalik ise ümber kujundada. Võimalik on majade pikemaks või lühemaks muutmine, aknatüüpide muutmine ja muud alternatiivid. Majadele on võimalik ehitada erinevas stiilis terrasse ja varjualuseid.
Vaata videost:
City 119 tehnilised andmed
Miks valida City 119?
Funktsionaalne planeering
Iga ruutmeeter on targalt kasutatud, sobib nii perele kui paarile.
Energiasäästlik ja pikaealine
Kaasaegsed materjalid ja konstruktsioonid tagavad madalad kulud ja mõnusa sisekliima.
Paindlik ja kohandatav
Võimalus muuta ruumide paigutust ja detaile vastavalt oma vajadustele.
Kastelli kvaliteet
Tõestatud konstruktsioonid, energiatõhusus ja materjalid, mis tagavad vastupidava ja kindla kodu aastakümneteks.
Kastelli majade ehituses kasutatakse kaasaegseid energiatõhusaid tehnoloogiaid, mis tagavad madalad küttekulud ja soojust säilitava kodu. Konstruktsioonid on täpselt tehases valminud, mis vähendab ehitusaega ja tagab kõrge kvaliteedi. Kõik majad on loodud pikaks elueaks, kasutades ainult vastupidavaid ja kõrge kvaliteediga materjale. Lisaks panustame tarkadesse lahendustesse, mis muudavad kodu mugavaks ja turvaliseks igapäevaelus.
Tehnilised andmed
| Kastelli | |
|---|---|
| Kvaliteet | Kõik majapaketi materjalid vastavad kõrgetele ehitusstandarditele, tagades pikaealise ja kindla kodu. |
| Soojustus ja energiatõhusus | Välisseinad on ISOVER Standardil, mis hoiab küttekulud madalad ja tagab mõnusa sisekliima aastaringselt. |
| Ruumid ja kõrgused | Vastavalt projektile on ruumide kõrgus ja suurus täpselt projekteeritud kliendi vajadusi silmas pidades. |
| Kujundus ja viimistlus | Välisviimistlus ning siselahendus vastavalt kliendi soovile, võimaldades kodu täielikult oma maitse järgi kujundada. |
| Joonised ja planeerimine | Digitaalsed eskiis- ja ehitusjoonised (PDF ja DWG) on aluseks ehitusloa menetlemisel, lihtsustavad planeerimist ja ehitust ning võimaldavad näha, kuidas maja reaalses elus välja näeb. |
| Tehasetäpsus ja tootmiskvaliteet | Kastelli majad toodetakse kaasaegses tehases kontrollitud tingimustes. See tagab millimeetri-täpsusega koostamise, kiire ehituse ja kindla kvaliteedi igas etapis. |
Lisaküsimuste korral võta meiega julgelt ühendust ja vastame esimesel võimalusel


