City 110
City 110 on kaasaegne, valgusküllane ja praktiline kodu, mis pakub avarust ja mugavust igapäevaeluks. 110 m² suurune elamispind on mõeldud perele, kes hindab läbimõeldud ruumijaotust, energiatõhusust ja kaasaegset arhitektuuri.
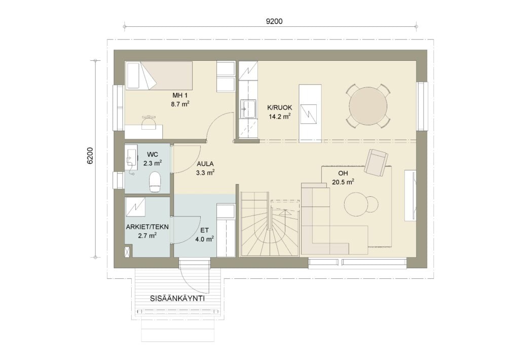
Avatud köök-elutuba moodustab kodu keskse kogunemiskoha, kus saab veeta kvaliteetaega pereliikmetega või võõrustada sõpru. Suured aknad ja terrassile avanevad uksed toovad tuppa rohkelt loomulikku valgust ning loovad sujuva ülemineku siseruumi ja õue vahel. City 110 pakub ruumikat planeeringut: kolm magamistuba, eraldi kabinet või mängutuba, majandusruum ja praktilised panipaigad – iga pere leiab siin oma paiga.
City 110 on loodud kestma: kvaliteetsed materjalid ja soojapidav konstruktsioon tagavad madalad küttekulud ning meeldiva sisekliima aastaringselt. Paindlik ruumilahendus võimaldab kohandada kodu täpselt oma pere vajadustele – näiteks suurendada elutoa või terrassi pinda, lisada aknaid või kohandada lagede kõrgust.
See kodu on ideaalne neile, kes otsivad ajatut, praktilist ja hubast kodu, mis pakub turvatunnet ja mugavust ning kasvab koos pere vajadustega.

Kohandamine ja võimalused
Kõiki Kastelli majamudeleid on kodu ehitajal võimalik ise ümber kujundada. Võimalik on majade pikemaks või lühemaks muutmine, aknatüüpide muutmine ja muud alternatiivid. Majadele on võimalik ehitada erinevas stiilis terrasse ja varjualuseid.
Vaata videost:
City 110 tehnilised andmed
Miks valida City 110?
Funktsionaalne planeering
Iga ruutmeeter on targalt kasutatud, sobib nii perele kui paarile.
Energiasäästlik ja pikaealine
Kaasaegsed materjalid ja konstruktsioonid tagavad madalad kulud ja mõnusa sisekliima.
Paindlik ja kohandatav
Võimalus muuta ruumide paigutust ja detaile vastavalt oma vajadustele.
Kastelli kvaliteet
Tõestatud konstruktsioonid, energiatõhusus ja materjalid, mis tagavad vastupidava ja kindla kodu aastakümneteks.
Kastelli majade ehituses kasutatakse kaasaegseid energiatõhusaid tehnoloogiaid, mis tagavad madalad küttekulud ja soojust säilitava kodu. Konstruktsioonid on täpselt tehases valminud, mis vähendab ehitusaega ja tagab kõrge kvaliteedi. Kõik majad on loodud pikaks elueaks, kasutades ainult vastupidavaid ja kõrge kvaliteediga materjale. Lisaks panustame tarkadesse lahendustesse, mis muudavad kodu mugavaks ja turvaliseks igapäevaelus.
Tehnilised andmed
| Kastelli | |
|---|---|
| Kvaliteet | Kõik majapaketi materjalid vastavad kõrgetele ehitusstandarditele, tagades pikaealise ja kindla kodu. |
| Soojustus ja energiatõhusus | Välisseinad on ISOVER Standardil, mis hoiab küttekulud madalad ja tagab mõnusa sisekliima aastaringselt. |
| Ruumid ja kõrgused | Vastavalt projektile on ruumide kõrgus ja suurus täpselt projekteeritud kliendi vajadusi silmas pidades. |
| Kujundus ja viimistlus | Välisviimistlus ning siselahendus vastavalt kliendi soovile, võimaldades kodu täielikult oma maitse järgi kujundada. |
| Joonised ja planeerimine | Digitaalsed eskiis- ja ehitusjoonised (PDF ja DWG) on aluseks ehitusloa menetlemisel, lihtsustavad planeerimist ja ehitust ning võimaldavad näha, kuidas maja reaalses elus välja näeb. |
| Tehasetäpsus ja tootmiskvaliteet | Kastelli majad toodetakse kaasaegses tehases kontrollitud tingimustes. See tagab millimeetri-täpsusega koostamise, kiire ehituse ja kindla kvaliteedi igas etapis. |
Lisaküsimuste korral võta meiega julgelt ühendust ja vastame esimesel võimalusel


