Tegutse kohe!
Saa valmis majalt kuni 20 000€ soodustust! Pakkumine kehtib veel loetud nädalad.
Väre 121 on nüüd saadaval erihinnaga nii Kastelli paketi, musta karbi kui ka võtmed kätte valmidusastmes. Soodustuse täpne suurus sõltub valitud valmidusastmest, ehituspiirkonnast ja tööde mahust. Tegemist on piiratud ajaga pakkumisega, seega võta meiega ühendust ning küsi personaalset hinnapakkumist.
Väre 121 on stiilne ja praktiline kodu
Avar ja funktsionaalne kodu igapäevaeluks
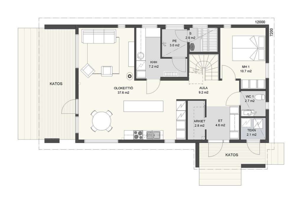
Väre 121 on kaasaegne ja funktsionaalne kodu, mis ühendab põhjamaise arhitektuuri selged jooned ja läbimõeldud ruumijaotuse. 121 m² netopinda (140 m² brutopinda) koos katusealuste terrassidega pakub piisavalt ruumi kogu perele ning sobib ideaalselt nii linnalähedasse elurajooni kui rahulikku looduskeskkonda, pakkudes igapäevasele elule mugavust ja harmooniat.
Funktsionaalne planeering ja valgusküllased ruumid
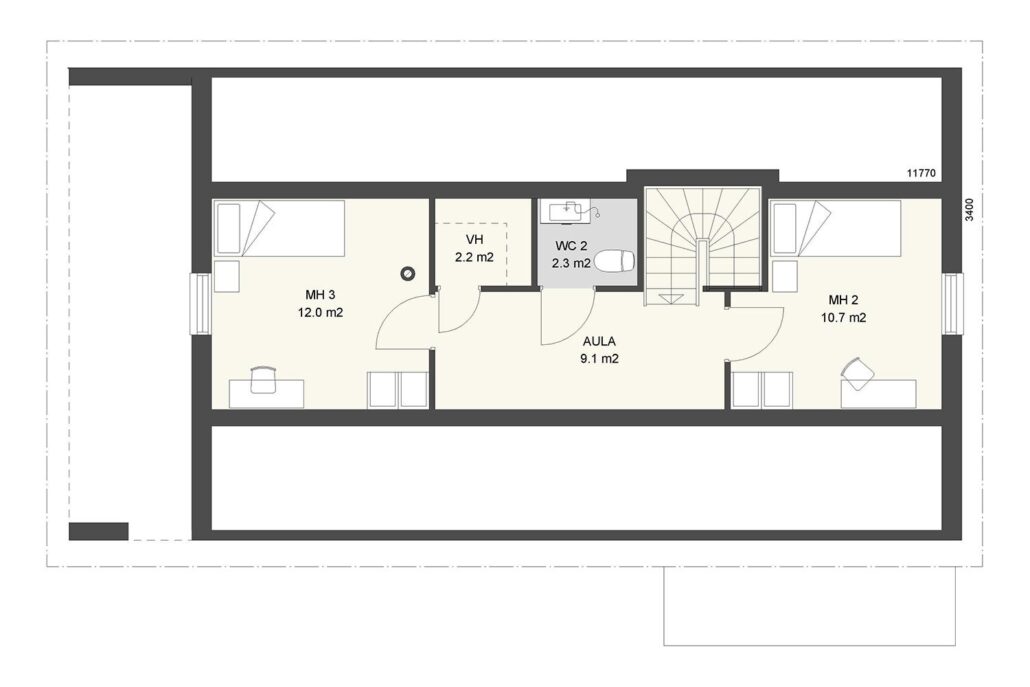
Avatud köök-elutuba on kodu süda, kus on ruumi nii pere ühisteks hetkedeks kui külaliste võõrustamiseks. Suured aknad lasevad ruumi palju loomulikku valgust ning ühendavad siseruumi sujuvalt terrassi ja õuega. Majas on kolm magamistuba, majandusruum, lisaesik, kaks wc-d, pesuruum, saun ja tehnoruum – iga ruutmeeter on nutikalt kasutatud.

Kohandamine ja võimalused
Kõiki Kastelli majamudeleid on kodu ehitajal võimalik ise ümber kujundada. Võimalik on majade pikemaks või lühemaks muutmine, akende ja uste asukohtade ning suuruse muutmine, vaheseinte nihutamine ja muud alternatiivid. Majadele on võimalik ehitada erinevas stiilis terrasse ja varjualuseid.
Vaata videost:
Väre 121 tehnilised andmed
Miks valida Väre 121?
Funktsionaalne planeering
Avar köök-elutuba ja kolm eraldi magamistuba tagavad mugava kodu igale pereliikmele.
Loodusvalgusküllane eluruum
Suured aknad ja terrassile avanev elutuba loovad avatud ja õdusa atmosfääri.
Praktilised lahendused
Majapidamisruum, panipaigad ja nutikas ruumikasutus teevad igapäevaelu lihtsamaks.
Kastelli kvaliteet
Energiatõhus ehitus ja ajatu disain tagavad kestva väärtuse ja madalad ülalpidamiskulud.
Kastelli majade ehituses kasutatakse kaasaegseid energiatõhusaid tehnoloogiaid, mis tagavad madalad küttekulud ja soojust säilitava kodu. Konstruktsioonid on täpselt tehases valminud, mis vähendab ehitusaega ja tagab kõrge kvaliteedi. Kõik majad on loodud pikaks elueaks, kasutades ainult vastupidavaid ja kõrge kvaliteediga materjale. Lisaks panustame tarkadesse lahendustesse, mis muudavad kodu mugavaks ja turvaliseks igapäevaelus.
Tehnilised andmed
| Kastelli | |
|---|---|
| Kvaliteet | Kõik majapaketi materjalid vastavad kõrgetele ehitusstandarditele, tagades pikaealise ja kindla kodu. |
| Soojustus ja energiatõhusus | Välisseinad on ISOVER Standardil, mis hoiab küttekulud madalad ja tagab mõnusa sisekliima aastaringselt. |
| Ruumid ja kõrgused | Vastavalt projektile on ruumide kõrgus ja suurus täpselt projekteeritud kliendi vajadusi silmas pidades. |
| Kujundus ja viimistlus | Välisviimistlus ning siselahendus vastavalt kliendi soovile, võimaldades kodu täielikult oma maitse järgi kujundada. |
| Joonised ja planeerimine | Digitaalsed eskiis- ja ehitusjoonised (PDF ja DWG) on aluseks ehitusloa menetlemisel, lihtsustavad planeerimist ja ehitust ning võimaldavad näha, kuidas maja reaalses elus välja näeb. |
| Tehasetäpsus ja tootmiskvaliteet | Kastelli majad toodetakse kaasaegses tehases kontrollitud tingimustes. See tagab millimeetri-täpsusega koostamise, kiire ehituse ja kindla kvaliteedi igas etapis. |
Tegutse kohe – veel loetud nädalad saad oma kodu kuni 20 000 € soodsamalt!
Küsi endale unikaalset pakkumist juba täna!


